Ugrás a tartalomhoz
Facebook
ÉPÜLET
KAPCSOLAT
Menü
ÉPÜLET
KAPCSOLAT
Hívjon minket
+36 70 455 6904
Írjon
t.ancsa@balterbau.hu
Várjuk
Ács
FŐOLDAL
ÁCS22
Megközelítés
Generál kivitelező
Műszaki paraméterek
LAKÁS VÁLASZTÓ
LAKÁS LISTA
TERVDOKUMENTÁCIÓ
KAPCSOLAT
Menü
FŐOLDAL
ÁCS22
Megközelítés
Generál kivitelező
Műszaki paraméterek
LAKÁS VÁLASZTÓ
LAKÁS LISTA
TERVDOKUMENTÁCIÓ
KAPCSOLAT
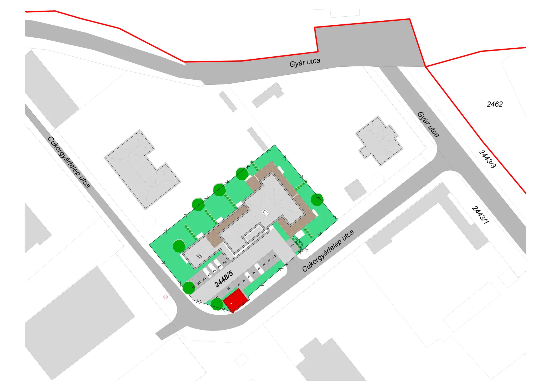
Lakás választó
Kezdőlap
/
Lakás választó
Kérjük válasszon épületet!